
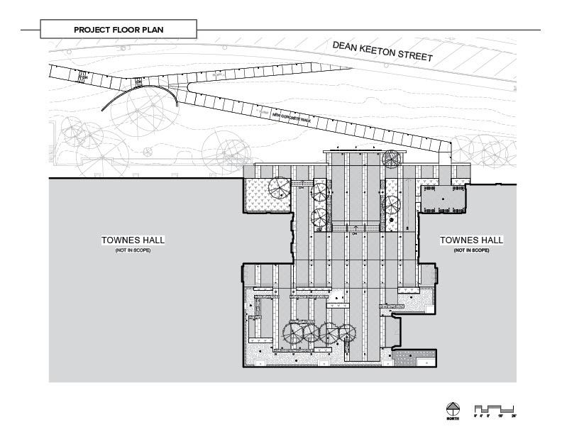
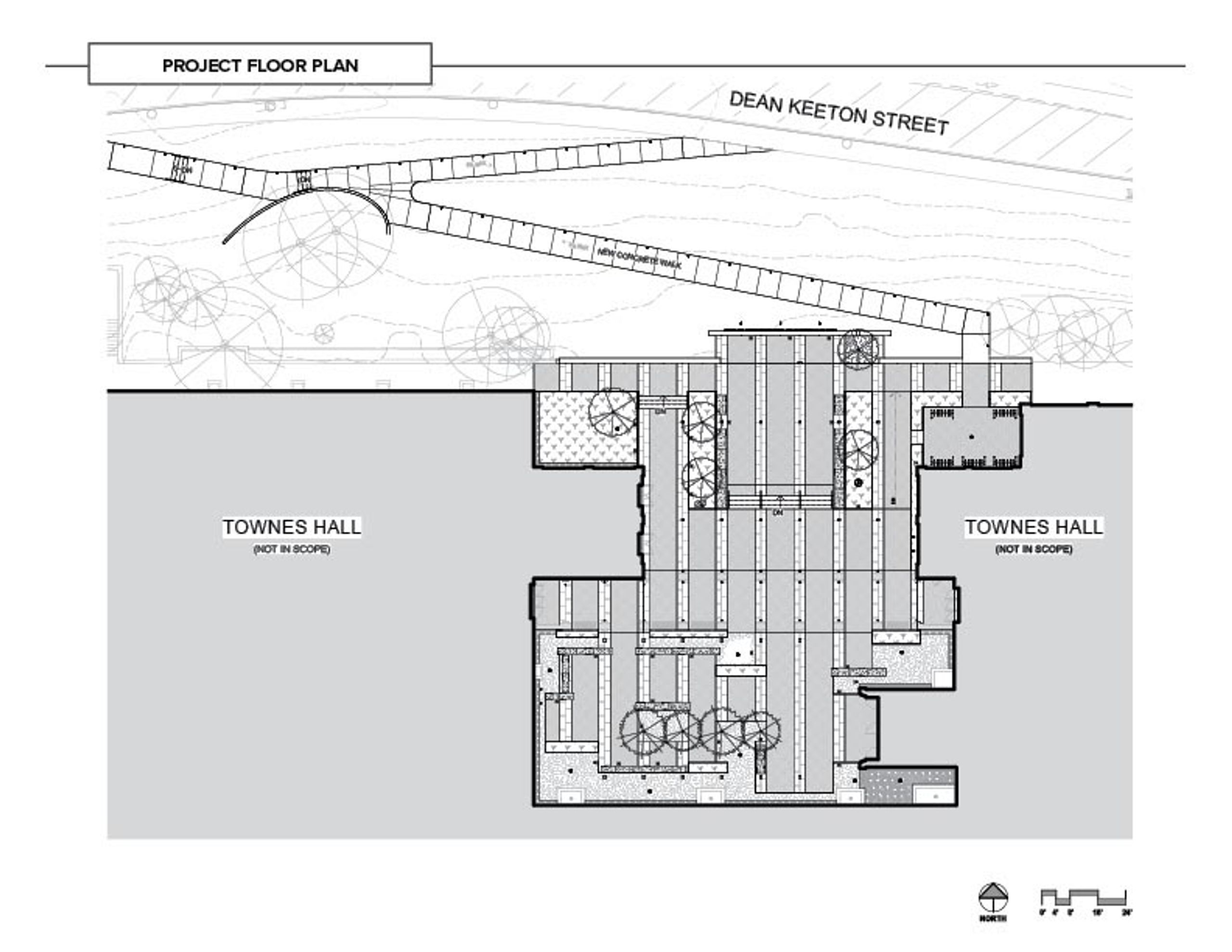
Law School Courtyard Renovation
The University of Texas at Austin
Project Details
- Location
- Austin, TX
- Size
- 14,500 sf
- Project Type
- Project type not assigned











Project Description
This entire project is a smashing success. These spaces used to have very few people in them, now they’re abuzz with life. We’re grateful to you all (for) elevating our school and improving the experience for generations of students, faculty, and alumni to come. What a beautiful result. Heartfelt thanks on a job wonderfully well done.
— Ward Farnsworth, Former Dean of the Law School